Project: Long’s House
Location: Thanh Tri, Hanoi, Vietnam
Topos: The suburban area
Typus: Residential amd healthcare building
Area: 124 qm
GFA: 170 qm
Year: 2021-2023
Commission: LPH 1-9 
Status: Completed 
Cost: KG 300+400 20.000 EUR
Client: Private
Lead Architect: Huong Vu
Collaborators: Hieu Nham, Vuong Dinh
Post-production: Duong Le, Hiep Nguyen
Credits: 
1-9 © Robert Herrmann
10-16 © vn-a

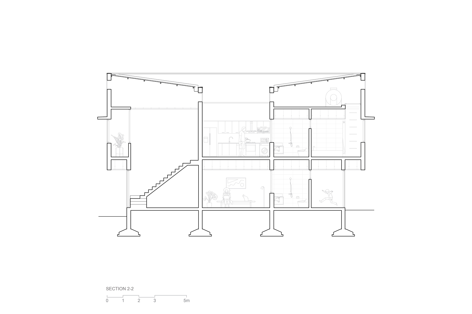
Natural ventilation shapes comfort in this modern home in Hanoi
Located on the outskirts of Hanoi, Long’s House is conceived as a spatial threshold mediating between the dense urban fabric and the surrounding landscape.
The house is a reunion of memories scattered across time and space through the unfolding of family life. Its transparency makes the neighbors an essential part of the spatial sequence.
The openness of the house renders it infinite, always ready to attach or detach from the next space in the ongoing process of urban densification.
The altar, the boiling kettle, the jackfruit tree, the kitchen, the air, and the heat insulation form a sequence of rituals for moving into a new home, yet together they also constitute a cosmos and a microcosm within the house itself.
Designed with the ability to adapt to future functional changes, the house accommodates two clinics run by the owner-doctors and includes structural provisions for additional floors to be built in the future.

Publications: Long’s House / vn-a | Archello, Architizer, Archilovers, Archinect, Dwell 
News: 

“Moving into a new home” Ceremony in Hanoi, Vietnam, 25 November 2021
Photo: © vn-a