Project: Residential and office complex KfW40
Location: Borkheide, Brandenburg, Germany
Topos: Rural urbanity
Typus: Residential and commercial building
Area: 3.260 qm
GFA: 1.700 qm
Year: 2022-2023
Commission: LPH 5 & part of LPH 8 
Status: Completed 
Cost: KG 300+400 3.370.000 EUR
Client: WESPE GmbH
Lead Architects: Huong Vu, Dung Nguyen
Team: Dang Nguyen
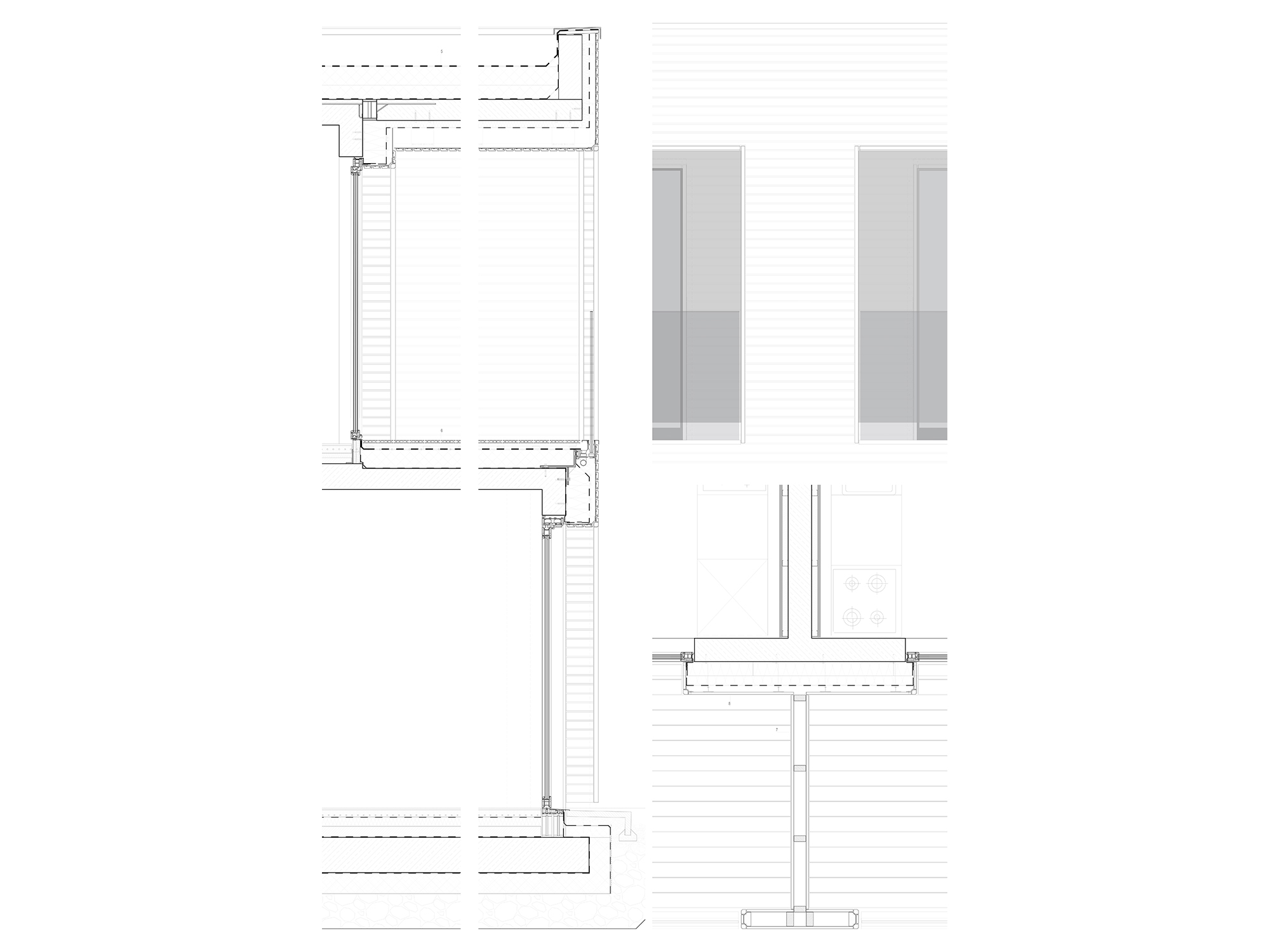
Credits: 
1-3, 7,8 © vn-a
4-6 Construction site 09-11.2022 © vn-a

Modern, sustainable living and working in Borkheide
Along Neuendorfer Straße in Borkheide, a contemporary ensemble of three two-storey buildings is being developed, offering compact and sustainable residential and commercial spaces. The site’s location on Neuendorfer Straße combines proximity to the centre of Borkheide with excellent access to public transportation and is directly connected to the EuroVelo Route R1.
The client places a strong emphasis on sustainability through the use of renewable energy sources for heating and electricity and the implementation of the KfW 40 energy efficiency standard. This approach not only meets current ecological requirements but also creates a contemporary environment for living and working in Borkheide.
With the aim of strengthening the village structure and encouraging young people to return to and engage with life in the area, the building complex acts as a catalyst within the local urban fabric. It serves both as a hub for start-ups and as a social meeting place for the surrounding neighbourhood. The design is characterised by an open and inviting architectural language, creating a refreshing atmosphere that fosters a strong sense of identification with the place.